Контакты
Услуги
Проекты
ЧАСТНЫЕ ИНТЕРЬЕРЫ
ОБЩЕСТВЕННЫЕ ПРОСТРАНСТВА
ЧАСТНЫЕ ИНТЕРЬЕРЫ
ОБЩЕСТВЕННЫЕ ПРОСТРАНСТВА
Контакты
Услуги
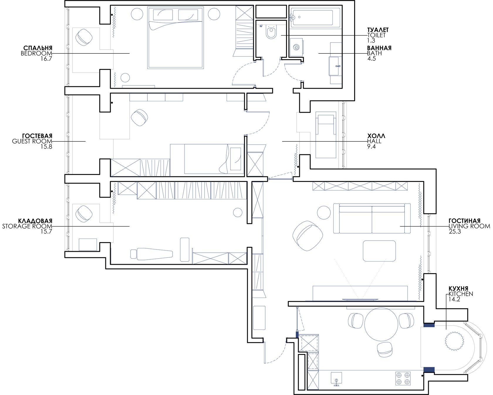
ОРШАНСКАЯ
О проекте
Обновление квартиры в "панельке" для современного
представления о комфорте
Год
2024
Фото
Илья Столяров
Стиль
Ольга Пархоменко
Публикации
MYDECOR
Планировка
Гостиная
Спальня
Кладовая
Кухня
Made on
Tilda